Klinikum Wahrendorff GmbH

Blick in die Küche

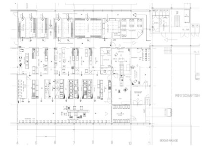
Grundriss Erdgeschoss

Sanierung der Küchenanlage

Die Küchenanlage des Klinikums Wahrendorff ist in den 70er Jahren gebaut. Das Gebäude, in dem sich die Küche befindet, besteht aus einem Vollgeschoss als Erdgeschoss mit Flachdach und einem Kriechkeller. Es war eine Vollsanierung des Betriebes, der während dieser Zeit eingestellt worden ist.
Die vorhandene Küchenanlage wurde entfernt und neue Gerätschaften angeschafft. Sämtliche Leitungen (Sanitär- und Elektroinstallation) sind im Kriechkeller untergebracht. Die vorhandene Lüftungsanlage /-kanäle wurde abgeändert und an neue Hauben angeschlossen. Die vorhandenen Kühlräume wurden ebenfalls abgebaut, entfernt und durch neue Fertigbaukühlzellen ersetzt. Wände, Decken und Fußböden mussten erneuert werden.

Bauort: Hannover / Sehnde
Fertigstellung: 2004

ZURÜCK

 

copyrigt © by mugffak ogus, schwelm